Trilocale in vendita

Casoria, Via J. F. Kennedy - Casoria Zona Residenziale
€ 159.000
Prezzo aggiornato
3 locali 3 locali
110 Mq 110 Mq
1 bagno 1 bagno

Trilocale in vendita

Casoria, Via J. F. Kennedy - Casoria Zona Residenziale

Descrizione annuncio

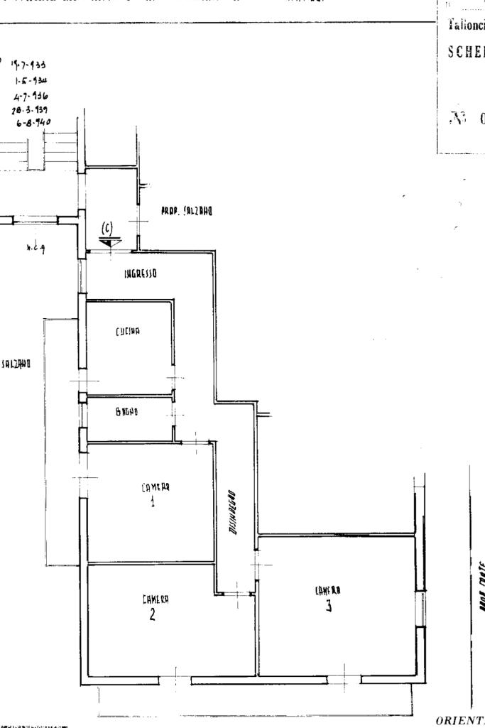
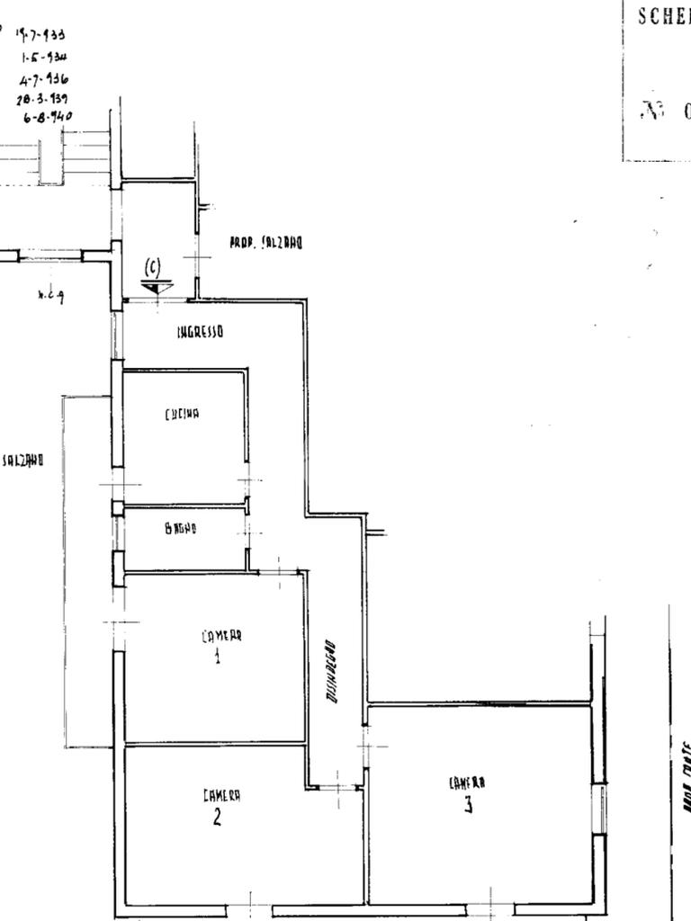
Nel cuore di Casoria, proponiamo un immobile di circa 110 mq sito all'interno di un condominio e posto al secondo piano privo di ascensore. L'immobile, si distingue per la sua disposizione interna ben studiata, difatti appena varchiamo la soglia troviamo un disimpegno che ci conduce verso la zona giorno che risulta particolarmente invitante, poichè troviamo una cucina e un salone che si fondono armoniosamente, creando uno spazio ideale per la vita quotidiana e per accogliere ospiti. Proseguendo un corridoio ci conduce verso la zona notte dove troviamo un'ampia camera matrimoniale, una spaziosa cameretta, una comoda lavanderia/ripostiglio ed infine troviamo il bagno con vasca. Uno dei punti di forza dell'appartamento è la sua luminosità, garantita da due ampi balconi che permettono alla luce naturale di inondare gli ambienti. La posizione assicura comodità data dai servizi e collegamenti facilmente accessibili.

Mostra tutto

Nelle vicinanze

Trasporto pubblico Trasporto pubblico
Casoria-Afragola
Casoria-Afragola
1,5 Km
stazione di Casoria-Afragola
stazione di Casoria-Afragola
1,5 Km
Via P. di Piemonte-INCR. - RIF. CIVICO N° 69 - (CASORIA)
Via P. di Piemonte-INCR. - RIF. CIVICO N° 69 - (CASORIA)
220 m
Trasporto pubblico
400 m
Ricariche auto elettriche Ricariche auto elettriche
IKEA Napoli
2,9 Km
Scuole Scuole
III Circolo "Giosuè Carducci"
390 m
Scuole
420 m
Domus Pueri II
510 m
Istituto Brando Casoria
910 m
Scuola dell'infanzia e primaria statale Vincenzo Tiberio
1,0 Km
Farmacia Farmacia
Farmacia
100 m
Farmacia Mandanici
110 m
Farmacia Eredi dottor Bruno
780 m
Parafarmacia Conad
2,1 Km
Farmacia Sant'Antonio dei dottori A. & M Della Camera
2,2 Km
Ospedali Ospedali
Ospedale Santa Maria della Pietà
910 m
Ospedali
1,2 Km
Distretto Sanitario
2,1 Km
Supermercati Supermercati
Decò
180 m
SISA - MegaMercato
180 m
MegaMercato - SISA
340 m
Supermercati
490 m
Euro Spin
1,2 Km
Negozi Negozi
Negozi
230 m
Bar Bar
Bar
170 m
Centro America
1,1 Km
Karma
1,3 Km
Bar Angelo
1,5 Km
Business Caffè
1,7 Km
Ristoranti Ristoranti
Ristoranti
120 m
Pizza Doc
200 m
My Day
390 m
pizzeria pizzé
890 m
La Casereccia
1,3 Km
Mostra tutto

Caratteristiche

Rif.:
61165821
Piano:
2 di 4 (Piano medio)
Balconi:
2
Camere da letto:
2
Arredamento:
Assente
Condizionamento:
Autonomo
Mostra tutto
Prezzo Prezzo
€ 159.000
Rata mutuo Rata mutuo
€ 753 / mese
Spese annue Spese annue
€ 240
Proponi il tuo prezzoProponi il tuo prezzo

Classe Energetica

E
E
E
E
E
E
E
E
E
Anno di costruzione:
1970
Riscaldamento:
Assente

Prezzo ridotto di €1 (21%%)

Ti interessa visionare l'immobile?

Fissa un appuntamento  Fissa un appuntamento

Richiedi informazioni

Clicca su Leggi per aprire l'informativa
* Questi campi sono obbligatori

Calcola il tuo mutuo

Semplice e senza impegno
Anticipo

( % )
Mutuo

( % )

pochi semplici passi

inserisci i tuoi dati
Questionario completato
Grazie per aver richiesto un appuntamento senza impegno con un nostro Consulente del Credito e Assicurativo.

Hai inserito correttamente tutti i dati necessari e a breve riceverai una e-mail con un link da convalidare per inviare i tuoi dati.
Affiliato
Immobiliare Casoria Centro Srl
Via Guglielmo Marconi, 34 80026 Casoria (NA)

Il nostro staff


  • Carmine Cerra
    Responsabile

  • Alberto Luongo
    Affiliato

  • Giuseppe Andreano
    Affiliato

  • Marco Sorge
    Collaboratore

  • Francesca Testa
    Coordinatrice
Via Guglielmo Marconi, 34 80026 Casoria (NA)
Zona: Casoria
Mostra su mappa
Orari: Lun-Ven: 09:00/13:30 - 15.30/19.30 Sab: 09:00/14.00
Affiliato
Immobiliare Casoria Centro Srl
Via Guglielmo Marconi, 34 80026 Casoria (NA)

2026 Tecnocasa Franchising S.p.A. - P. IVA 08365160152 - Via Monte Bianco 60/A 20089 Rozzano (MI). Ogni agenzia ha un proprio titolare ed è autonoma. Privacy policy | Policy utilizzo | Cookie policy